Projekte
Ein Einblick in meine zuletzt bearbeiteten Modelle, statischen Berechnungen und Ausführungspläne.
Statische Berechnung, 3D-Modellierung, Schalplanung LPH1 bis LPH5, Projektleitung
1. ENRW Rottweil






Neubau einer Halle mit Verwaltungsgebäude in Beton- und Holzbauweise, ca. 5.000 m² Charakteristisch für das Projekt waren Brettsperrholzdecken mit großen Spannweiten im Holzbau (bis ca. 7,0 m). Maßgebend war der Schwingungsnachweis, wodurch eine Erhöhung der Deckenstärke um 2–4 cm erforderlich wurde. Aufgrund der Lage in Erdbebenzone 1 waren die Deckenscheiben für erhöhte horizontale Einwirkungen zu bemessen und in die aussteifenden Betonkerne einzubinden. Die Halle wurde mit Stahlbeton-Fertigteilstützen und Holzträgern mit Spannweiten bis zu 20 m realisiert.
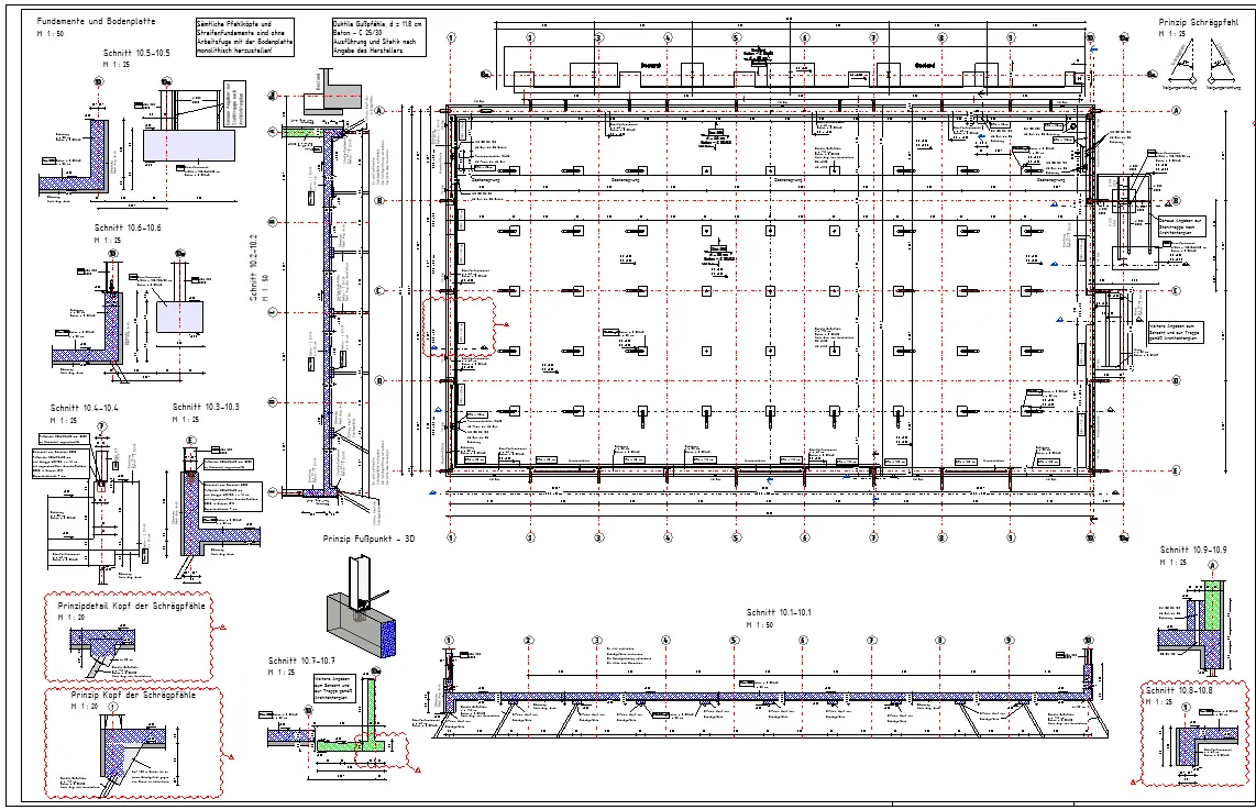
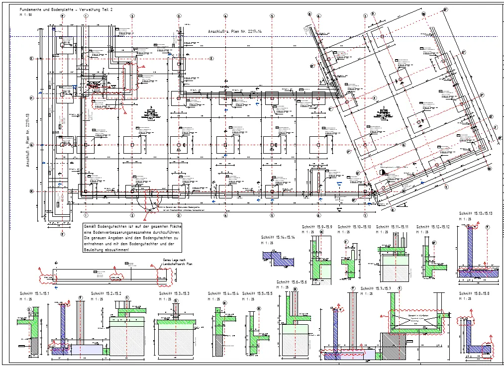
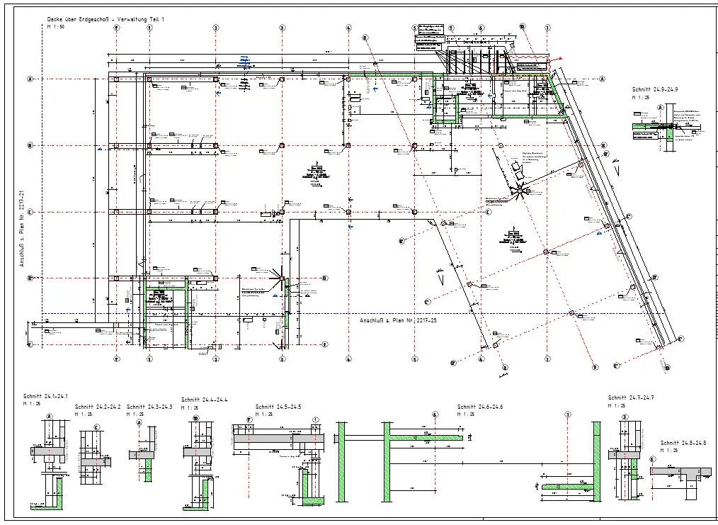
2. Milwaukee Training Center – TTI







Neubau Halle und Bürogebäude in Beton und Stahl Bei diesem Projekt musste die Halle F30 sein, deshalb habe ich die Warmbemessung der Stahlkonstruktion als F30 durchgeführt und eine Verbunddecke im Fluchtweg geplant. Die Fassade musste aus Brandschutzgründen einen Abstand von 5 cm zum Tragwerk haben, und alle tragenden Bauteile wurden mit der Beschichtung versehen, die sich aus der Warmbemessung ergab. Außerdem war das auskragende Vordach im 1. OG mit über 6 m besonders interessant, vor allem der Anschluss. Der Schallschutz war ebenfalls ein Thema: Einige Räume mussten mit Fugen in der Bodenplatte getrennt werden, damit keine Schallübertragung vom Flur in die Seminarräume erfolgt. Aufgrund schlechter Bodenverhältnisse wurden Pfähle eingeplant, in diesem Fall duktile Gusspfähle.
3. Omega Pharma – Herrenberg







Neubau eines Fertigwarenlagers in Beton- und Stahlbauweise Das Gebäude war auf drei Seiten als Stahlhalle geplant, während an einer Seite eine F90-Massivwand zum Bestandsgebäude vorgesehen war. Aufgrund schlechter Bodenverhältnisse und Erdbebenzone 2 wurden Schrägpfähle zur Aufnahme horizontaler Lasten eingeplant. Die Bodenplatte wurde in WU-Beton ausgeführt, wodurch eine Rissbreitenbegrenzung von 0,1 mm einzuhalten war. Zusätzlich war aufgrund der Belastung durch Gabelstapler ein Ermüdungsnachweis erforderlich, der eine erhöhte Bewehrung notwendig machte. Die oben genannten Faktoren sowie einige Anforderungen von FM Global machten das Projekt trotz der scheinbar einfachen Halle sehr anspruchsvoll und interessant.
4. Wohnhaus Knoch




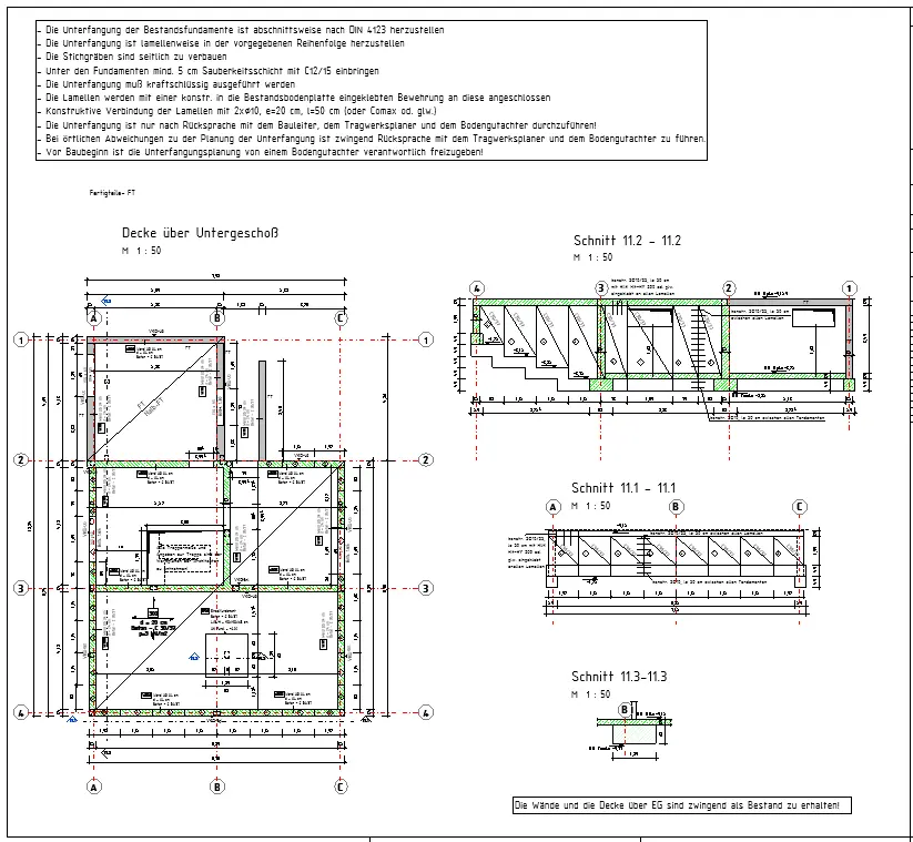
Umbau eines Wohngebäudes unter Erhalt der Erdgeschosswände Im Rahmen der Umbaumaßnahme mussten die bestehenden Erdgeschosswände stehen bleiben, weshalb eine Unterfangung geplant und ausgeführt wurde. Die Balken im Erdgeschoss wurden anschließend seitlich verstärkt, während das 1. Obergeschoss und das Dach neu geplant wurden.
5. Mero Maichingen





Bestandsanalyse eines Stahl-Mero-Raumfachwerks. Untersuchung des Tragwerks unter Berücksichtigung verschiedener Lastansätze: - Vergleich der ursprünglichen Bemessung (1973) mit den angesetzten Lasten nach der Sanierung 1995 - Nachweisführung mit aktuellen Wind- und Schneelasten - Zusatzuntersuchung hinsichtlich zusätzlicher Photovoltaik-Lasten Ziel war die Bewertung der Tragreserven im Bestand unter heutigen normativen Anforderungen.
6. Veile, Dagersheim





Die Geometrie des Gebäudes war aufgrund einer Auskragung von über 4 m etwas komplexer. Im 1. Obergeschoss wurden wandartige Träger eingesetzt, um diese Auskragung zu ermöglichen. Um die Lasten im auskragenden Bereich zu reduzieren und die Verformungen zu verringern, wurde dort anstelle einer Betondecke eine Holzdecke geplant.
7. Ölfke Hertmannsweiler


Neubau in Stahlbetonbauweise Mitwirkung bei der statischen Bemessung, vollständige 3D-Modellierung und Schalplanung bis Leistungsphase 5 in Revit. Aufgrund ungünstiger Bodenverhältnisse mussten Pfähle geplant werden, in diesem Fall duktile Gusspfähle. Da wiederkehrende Belastungen durch Gabelstapler vorlagen, war zudem ein Ermüdungsnachweis zu führen.
8. Tiefgarage Sindelfingen





Neubau einer Tiefgarage in Beton Das Projekt befand sich in der Leistungsphase 3 und wurde eingestellt, sodass die Genehmigungs- und Ausführungsplanung nicht weitergeführt werden konnte.
9. Patch Barracks



Unterfangung eines Bestandsgebäudes Im Rahmen von Sanierungsmaßnahmen wurde eine Unterfangung geplant. Es waren größere Risse im Bestandsgebäude vorhanden, und der Bauherr wollte ausschließlich sanieren, nicht neu bauen.
10. Anatomie Bonn



Neubau in Beton- und Stahlbauweise (Planung bis LPH 3). Geplant war ein Neubau in unmittelbarer Nähe eines Bestandsgebäudes mit vorgesehener Stahlbrücke als Verbindungselement. Das Projekt wurde in Leistungsphase 3 aus Kostengründen eingestellt.
11. Stahltreppen






Zwei Stahltreppen. Die erste ist eine auskragende Stahlfluchttreppe, gelagert auf zwei Stützen und angeschlossen an das angrenzende Gebäude. Die zweite ist ein Vordach mit einer Stahltreppe, die auf das Dach einer Halle führt. Da in der Nähe LKW verkehren, mussten die Höhen-Anpralllasten berechnet werden. Deshalb sind die unteren 1,5 m der beiden Stützen geschlossen und betoniert.
12. Kloster Denkendorf


Umbau Kloster Denkendorf Charakteristisch für dieses Projekt war die Modellierung der Bauphasen-Funktion in Revit. Dadurch konnte klar und effizient zwischen Abbruch, Bestand und Neubau unterschieden werden. Zusätzlich wurden in jedem Geschoss zwei separate Grundrisse dargestellt: – Abbruch / Bestand – Bestand / Neubau Auch der Bauablauf war ein zentrales Thema und wurde detailliert geplant.